live broadcast 자세히보기
반응형

2025/01/07 3

House & Restaurant

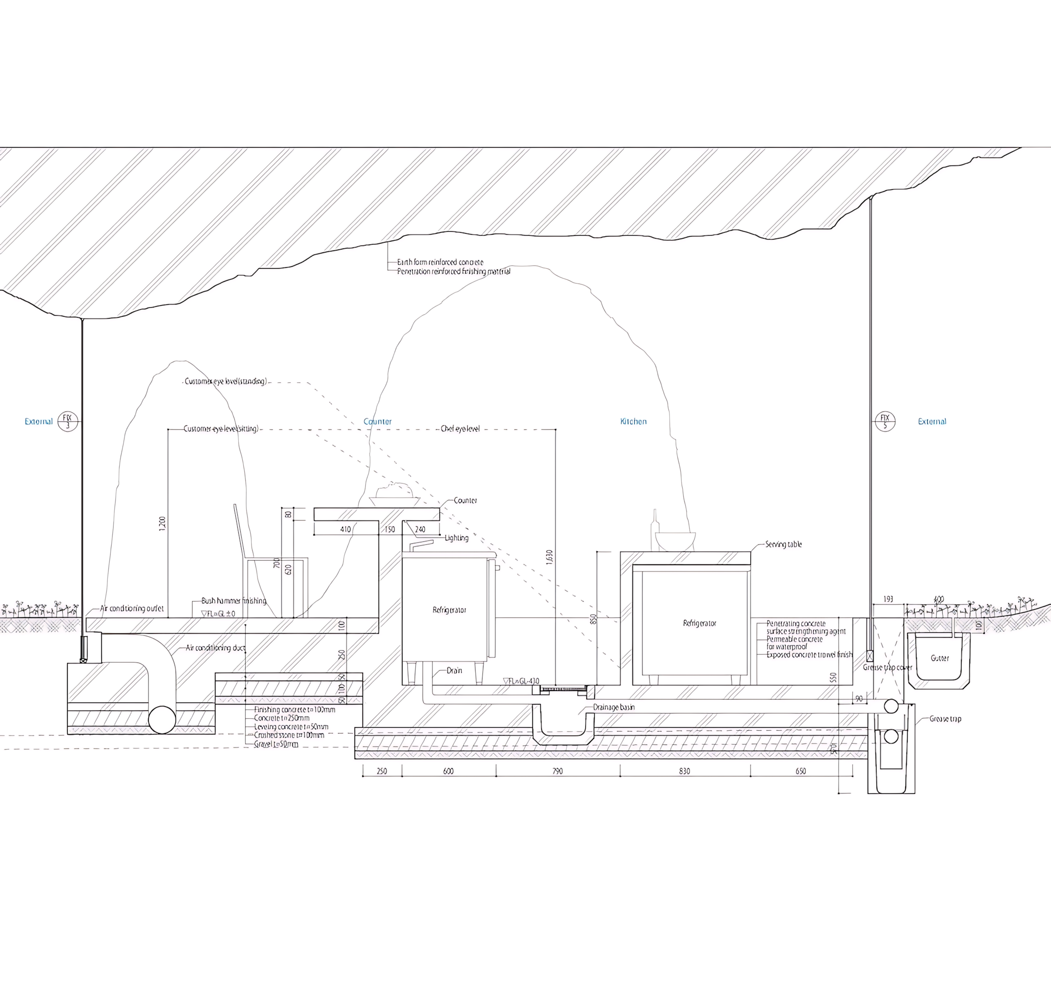
https://youtu.be/jmcyAdCTgrk?si=b1UUHeLQL4yByvyE   House & Restaurant / junya ishigami + associates The project is a residence/restaurant for a French restaurant owner. He is an old friend of mine, and he was the one who commissioned the Tables for a Restaurant. I was asked to design a building as “heavy” as possible. “I want an architecture whose heaviness would increase with time,” he said. “I..

자료 2025.01.07