live broadcast 자세히보기
반응형

Ludwig Godefroy Architecture 7

House in Los Cocos

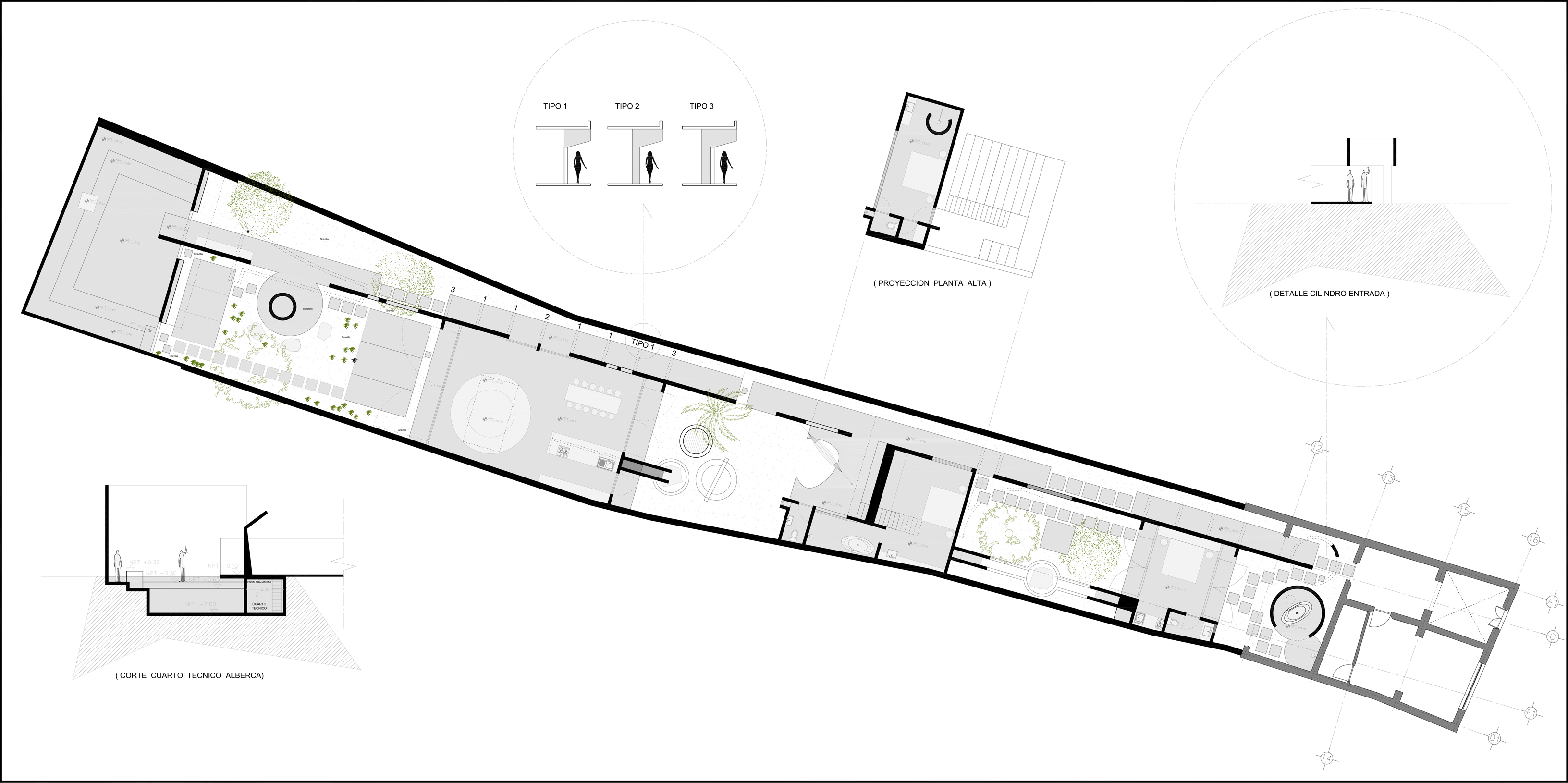
House in Los Cocos / Ludwig Godefroy Architecture House in Los Cocos is located south of the historic center of Mérida - Yucatán, in Mexico. The design of the project arises from the proportion of the land itself, 70 meters long x 8 meters wide. House in Los Cocos는 멕시코 유카탄 주 메리다의 역사적인 중심부 남쪽에 위치해 있습니다. 프로젝트의 디자인은 길이 70 미터 x 폭 8 미터의 토지 자체의 비율에서 태어났습니다.

자료 2023.09.08

Alférez House Ludwig Godefroy Architecture

Alférez House Ludwig Godefroy Architecture 이 별장은 사는 사람에게 강한 안심감을 주면서도 나무 안에 땅에 놓여 있던 것 같은 것을 목표로 세워져 있습니다. 그 결과, 콘크리트의 사용으로 표현된 오두막과 요새의 개념 사이의 언어의 만남을 특징으로 하는 주택이 탄생했습니다. 이 집은 지형의 가파른 경사로 인한 복잡하고 값 비싼 기초를 피하기 위해 컴팩트 한 설치 면적과 작은 기초로 설계되었습니다. 집은 자연의 경사면에 세워져 있으며, 남서쪽 모퉁이에서 소나무 사이로 날아가고, 반대쪽 북동쪽 모퉁이에서는 절반 묻혀 있습니다. 이 집은 자연 지형에 떠있는 오두막의 감각을 재현하는 것을 목표로합니다. 이 구조는 그 기초의 완벽한 균형을 표현하며, 한 캐빈의 가벼움의 감각과 다른..

설계 2023.07.04