반응형
Lines and Motion | MYVN Architecture
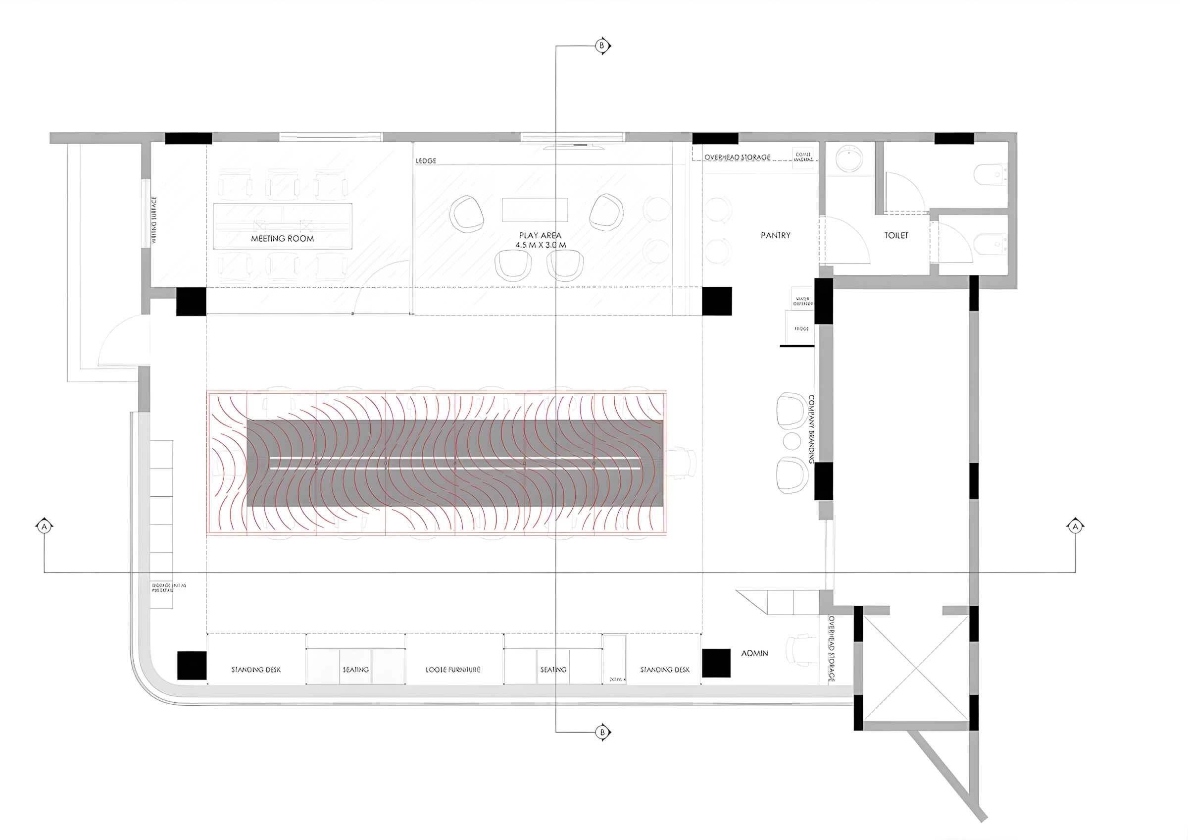
Lines and Motion, designed by MYVN Architecture, is a take on designing an office workspace with an approach of total contrast to the conventional workspaces. The simplified clean floor plan intrigued us with the idea of a single sleek long table for the whole workspace. The massive scale of the table was to be reflected on the ceiling as a single volume. The single volume on the ceiling took a form of a light installation.
MYVN Architecture가 디자인한 Lines and Motion은 기존의 업무 공간과는 완전히 대조되는 접근 방식으로 사무실 업무 공간을 디자인하는 방식입니다. 간결하고 깔끔한 평면도는 전체 업무 공간을 하나의 매끈한 긴 테이블로 채우는 아이디어로 우리를 사로잡았습니다. 테이블의 거대한 규모는 천장에 하나의 볼륨으로 반영되도록 했습니다. 천장의 단일 볼륨은 조명 설치물 형태를 띠었습니다.

















반응형
'자료' 카테고리의 다른 글
| Pop-up campus – Infitity 6 (0) | 2025.11.22 |
|---|---|
| Benjamin Moore Experience Center, Jinhua (0) | 2025.11.21 |
| House in Yokosuka (0) | 2025.11.16 |
| The Glass Cabin (0) | 2025.11.16 |
| Udan Crematorium (0) | 2025.11.16 |